Нові котеджі в КК "Михайлівський"
Ужгородський, Ужгород, р-н. Табла 1, Михайлівська
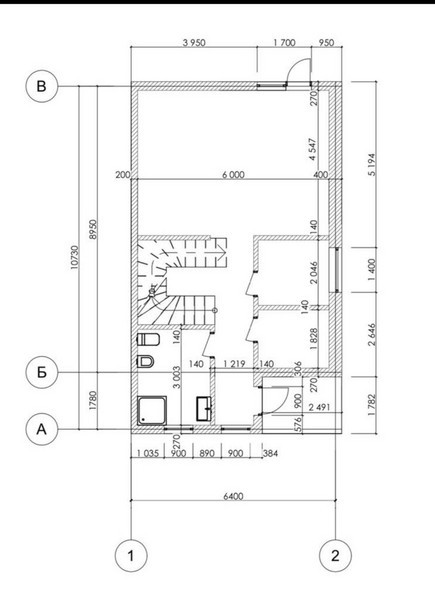
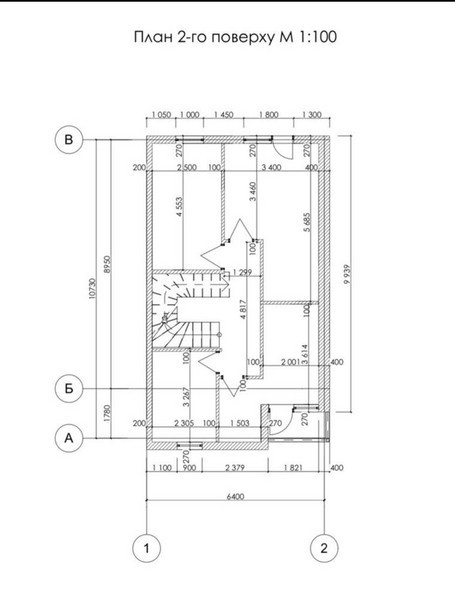
Загальна площа:120 кв.м
Поверх:1 /2
Кількість кімнат:3
Рік будівництва:2020
Ціна:95 000 USD ≈ 4 007 803 грн
Ціна за кв.м.:792 USD
Код об'єкта:4252
Опис:Котеджне містечко закритого типу на 16 котеджів із повністю закритою територією і власним дитячим майданчиком на 2.5 сотини! Уся територія повністю огорожена, два заїзди на автоматичних GSM - воротах. Котеджі між собою відгороджені, мають навіс на авто, терасу, кожний має власну свердловину (вода), у вартість входить повний благоустрій території: дорога, тротуари, вуличне освітлення, озеленення, дит. майданчик. Матеріал - цегла, утеплення - мінвата, вікна - rehau, фасад - мікробетон і плитка. Опалення індивідуальне електричне. каналізація - загальна біосептична система виведена за межі комплексу.
Рієлтор:Сергій
Телефон:(050) 372-55-66 +38 (097) 753-85-86
Мобільний:+38 (066) 220-15-35 +38 (098) 382-20-98
E-mail:uzhrealty@gmail.com


















